- 614010, Россия, Пермь, Комсомольский проспект, 80
- ПН-ПТ 9:00-18:00
- +7 (342) 206-68-80
- info@alliance-gk.ru
Статус работ: Завершенный проект
Заказчик: Информация является конфиденциальной
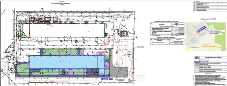
Проект: Проектирование по объекту: «Организация участка изготовления крупногабаритных отливок, в 2х этажном кирпичном здании цеха №6 -теплового пункта»
Место выполнения работ: Пермский край, г. Пермь, шоссе Космонавтов, д. (Информация является конфиденциальной)
Виды работ:
— Разработка рабочей документации, включая комплекс инженерных изысканий




