- 614010, Россия, Пермь, Комсомольский проспект, 80
- ПН-ПТ 9:00-18:00
- +7 (342) 206-68-80
- info@alliance-gk.ru
Статус работ: Завершенный проект
Заказчик: Верхнекамский электромеханический завод, ВЭМЗ г. Соликамск
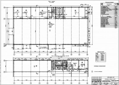
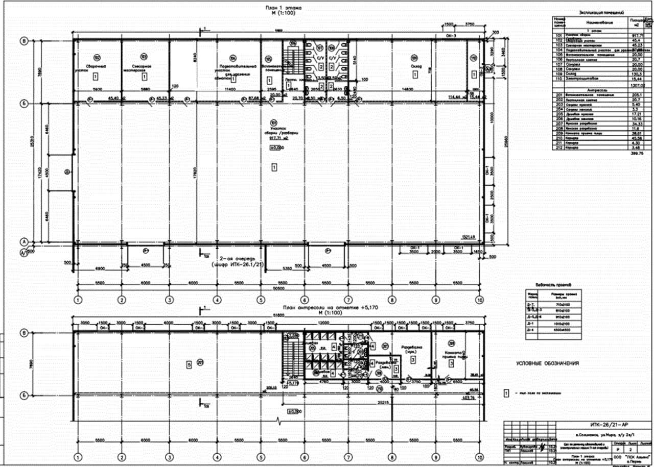
Проект: «Цех по ремонту автомобилей и электрических машин»
Виды работ:
- Проведение инженерно-геологических, инженерно-геодезических изысканий
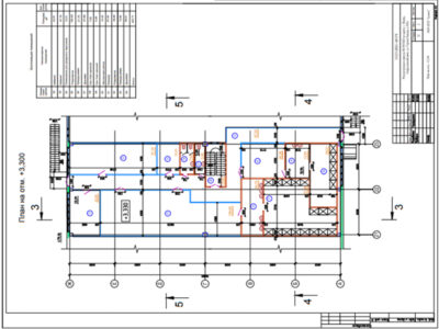
- Разработка проектной документации стадии «П» и «РД»
- Комплекс строительно-монтажных работ по устройству столбчатого фундамента, в т.ч. земляные работы по обратной засыпке фундаментов местным грунтом и гидроизоляция.
- Комплекс строительно-монтажных работ по изготовлению и монтажу металлоконструкций основного каркаса здания и антресоли (более 170т).
- Поставка и монтаж ограждающих конструкций стен из трехслойных сэндвич-панелей, фассонных и доборных элементов (1460м2)
- Поставка и монтаж конструкций кровли из трехслойных сэндвич-панелей, фассонных и доборных элементов (400м2)
- Комплекс строительно-монтажных работ по устройству пола
























