- 614010, Россия, Пермь, Комсомольский проспект, 80
- ПН-ПТ 9:00-18:00
- +7 (342) 206-68-80
- info@alliance-gk.ru
Статус работ: Завершенный проект
Заказчик: Информация является конфиденциальной
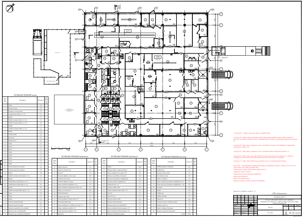
Проект:Генеральный подряд на техническое обследование и проектно-изыскательские работы по объекту «Мини-цех по убою крупного рогатого скота и мясопереработке»
Виды работ:
1. Разработка проектной документации (стадия П)
2. Разработка рабочей документации (стадия РД)







